Lager og showroom med flotte kontorfaciliteter – vareelevator
Kontor / lager / showroom til leje i Albertslund.
Flot og nyistandsat lejemål på 1. sal beliggende i velholdt ejendom.
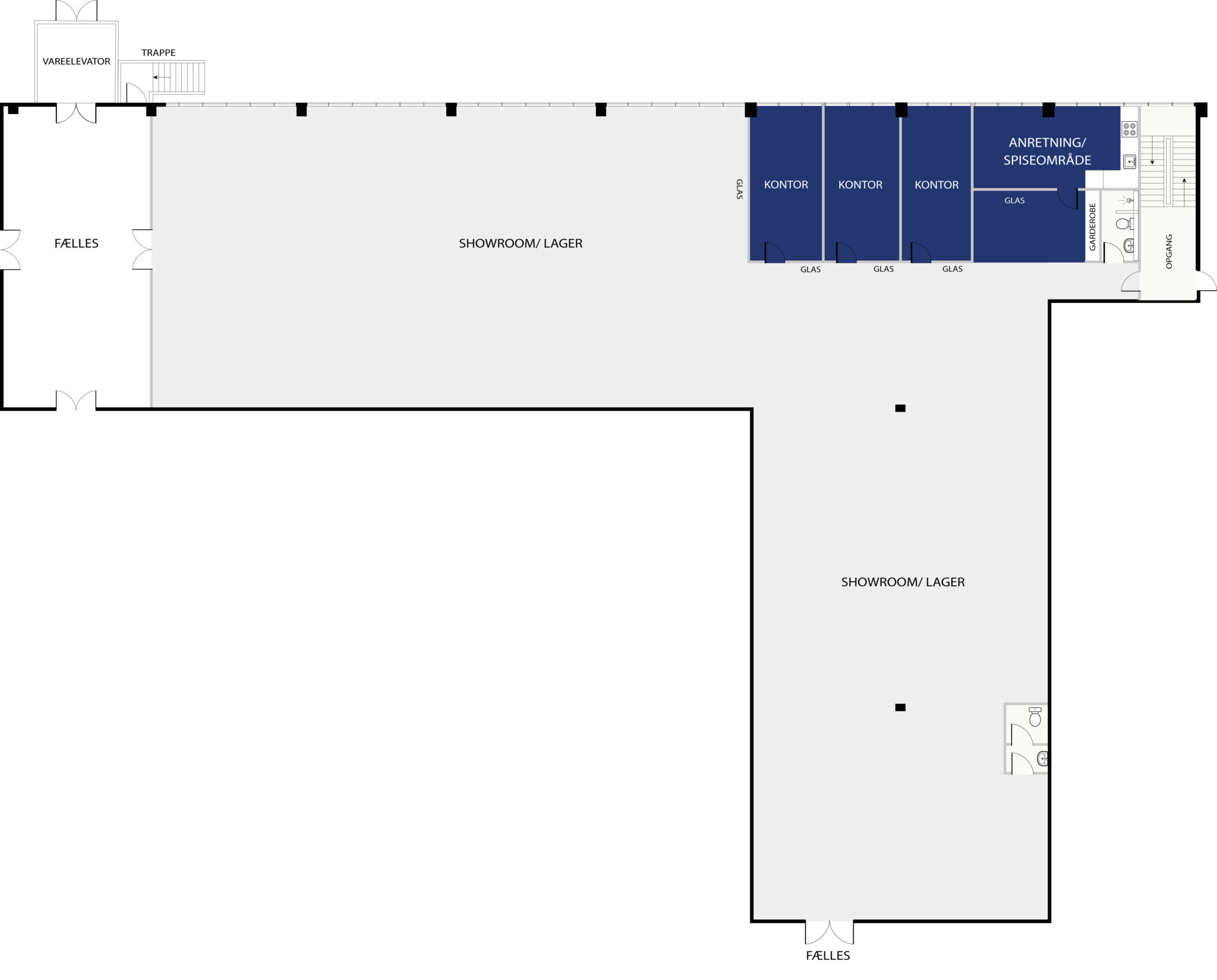
Lejemålet er pt. indrettet med 3 kontorer med glasvægge, nyt anretterrum med spiseplads og toiletter/badefaciliteter. Endvidere stort flot og lyst rum til lager eller showroom.
Der er pålagt tæppefliser i kontorer og øvrige arealer er pålagt med epoxybelægning.
Der er potentielt vare-adgang til lejemålet via stor vareelevator.
Ejendommen har gode parkeringsforhold, så der er pladser til både personale og gæster samt mulighed for opladning af elbiler (E-on og Clever).
Ejendommen er beliggende i et roligt kvarter, nær offentlig transport og motorvejsnet og er indhegnet med elektriske porte med automatisk lukning samt videoovervågning i 24 timer, for at skabe trygge rammer.
Ligeledes forefindes der hjertestarter på ejendommen.
Alle priser er anført ekskl. moms.










