Domicilejendom med fleksibel indretning!
Totalrenoveret domicilejendom – mulighed for skræddersyet indretning
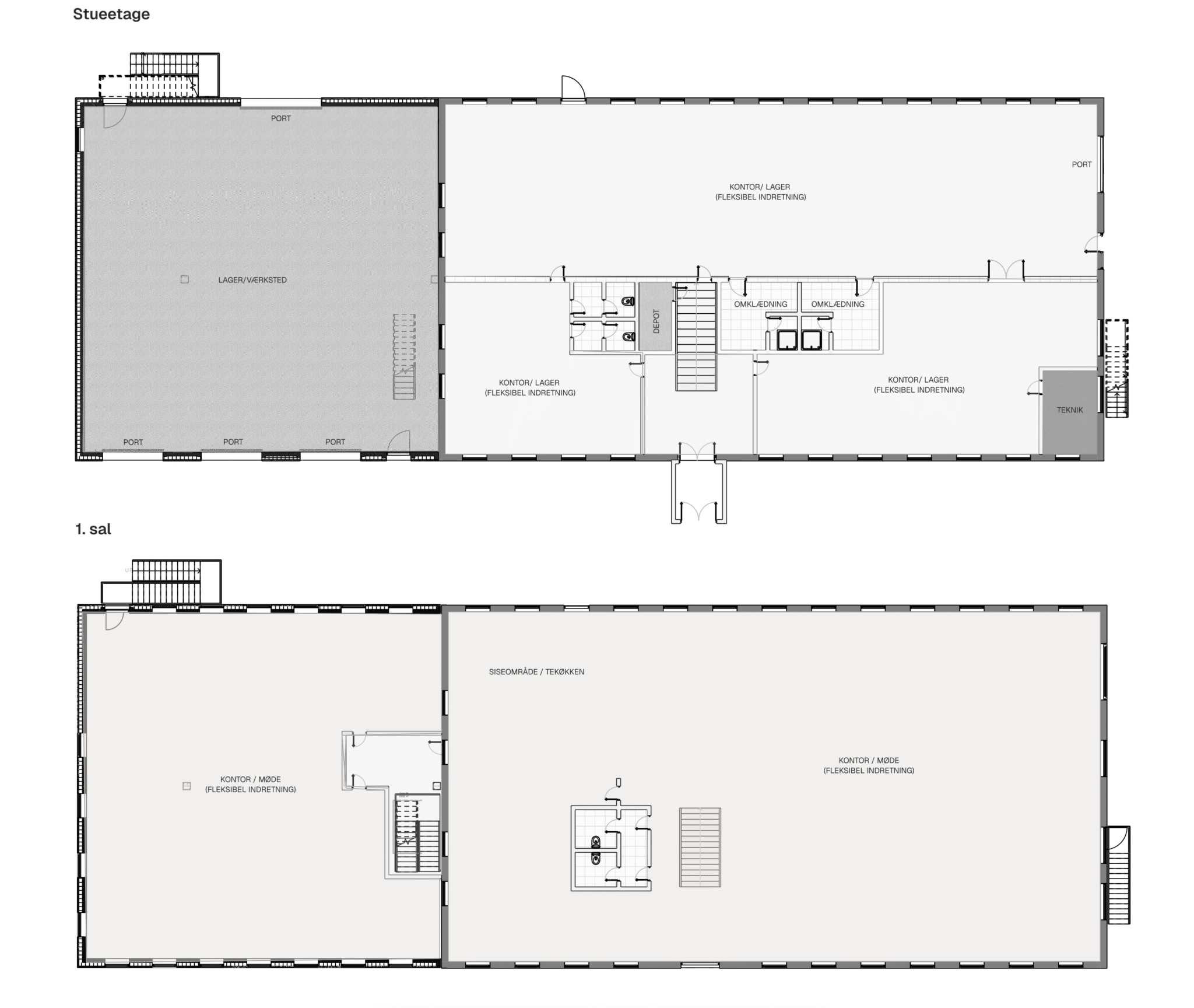
Ejendommen på Valseholmen 11 er under total istandsættelse og udvikles til en moderne domicilejendom med fleksible anvendelsesmuligheder. Lejemålet udgør i alt 1.885 m² etageareal fordelt på stue, 1. sal og en mindre 2. sal samt 2.105 m² befæstet udeareal.
Ejendommen udlejes til én samlet lejer, der ønsker at etablere sit eget domicil og samtidig få indflydelse på den endelige indretning.
Ejendommen
Bygningen fremstår markant og moderne med mørk facade, mange vinduespartier og høj funktionalitet. Hele ejendommen er sikret med overvågning og har elektriske porte til begge ejendommens afsnit.
Stueetagen rummer store, lyse og fleksible arealer, som kan anvendes til kontor, showroom, produktion eller lager. Den store værkstedshal/lagerhal er udstyret med grav til håndtering under biler og lastbiler, samt olieudskiller, hvilket gør den særligt egnet til virksomheder med teknisk eller tung drift. Hallen har fire elektriske ledhejseporte, mens der er én port til et separat lager-/produktionsafsnit.
Førstesalen kan indrettes med moderne kontorer, mødelokaler og spiseområde, og der kan etableres nye bade- og omklædningsfaciliteter. På 2. salen på ca. 40 m² etableres et helt nyt fællesrum, møderum eller kantine – afhængig af lejers behov.
Bygningen istandsættes gennemgribende med:
-
Nye trelags energiruder
-
Nye bade- og omklædningsfaciliteter
-
Nye kontorer og installationer
-
Nyt gulv og overflader i lager og værksted
-
Opdateret teknik og el
-
Færdiggørelse som “grey box”, så lejer kan præge indretningen
Fakta
-
Etageareal: 1.885 m²
-
Befæstet areal: 2.105 m²
-
Udvendige elporte til ejendommen: 2 stk.
-
Ledhejseporte: 4 stk. i hal + 1 stk. til lager/produktion
-
Grav og olieudskiller i værksted
-
Overvågning på hele ejendommen
-
God tilkørsel, indhegnet areal og gode parkeringsmuligheder
Leje og vilkår
Lejemålet udlejes på triplenet-vilkår, hvor lejer selv varetager udvendig vedligeholdelse, renholdelse og drift af udenomsarealer mv. Lejer får dermed fuld dispositionsret – man er reelt herre i eget hus – men forpligtet til at vedligeholde ejendommen forsvarligt.
Lejeniveauet afhænger af den endelige indretning og afleveringsstandard. Som udgangspunkt forventes en ca. leje som annonceret for standard aptering, hvor endelig pris og vilkår fastlægges efter dialog med lejer. Det befæstede areal udlejes separat til 150 kr. pr. m² årligt.
Ejendommen udlejes kun til lejere med solid bonitet og på en løbetid, der afspejler investeringens omfang og indretning.
Beliggenhed
Ejendommen ligger centralt på Valseholmen i Hvidovre, et attraktivt og veludbygget erhvervsområde med kort afstand til motorvejsnettet (E20 og Holbækmotorvejen) samt København. Området huser både produktions-, håndværks- og logistikvirksomheder og har en velfungerende infrastruktur med gode adgangsforhold.
Mulighederne
Valseholmen 11 er en sjælden mulighed for virksomheder, der ønsker et repræsentativt domicil med kombination af kontor, lager og værksted, hvor rammerne kan skræddersys fra starten.
Her får man moderne faciliteter, fleksibilitet og fuld kontrol – alt samlet under ét tag.








