Funktionelt showroom med lager i Ishøj
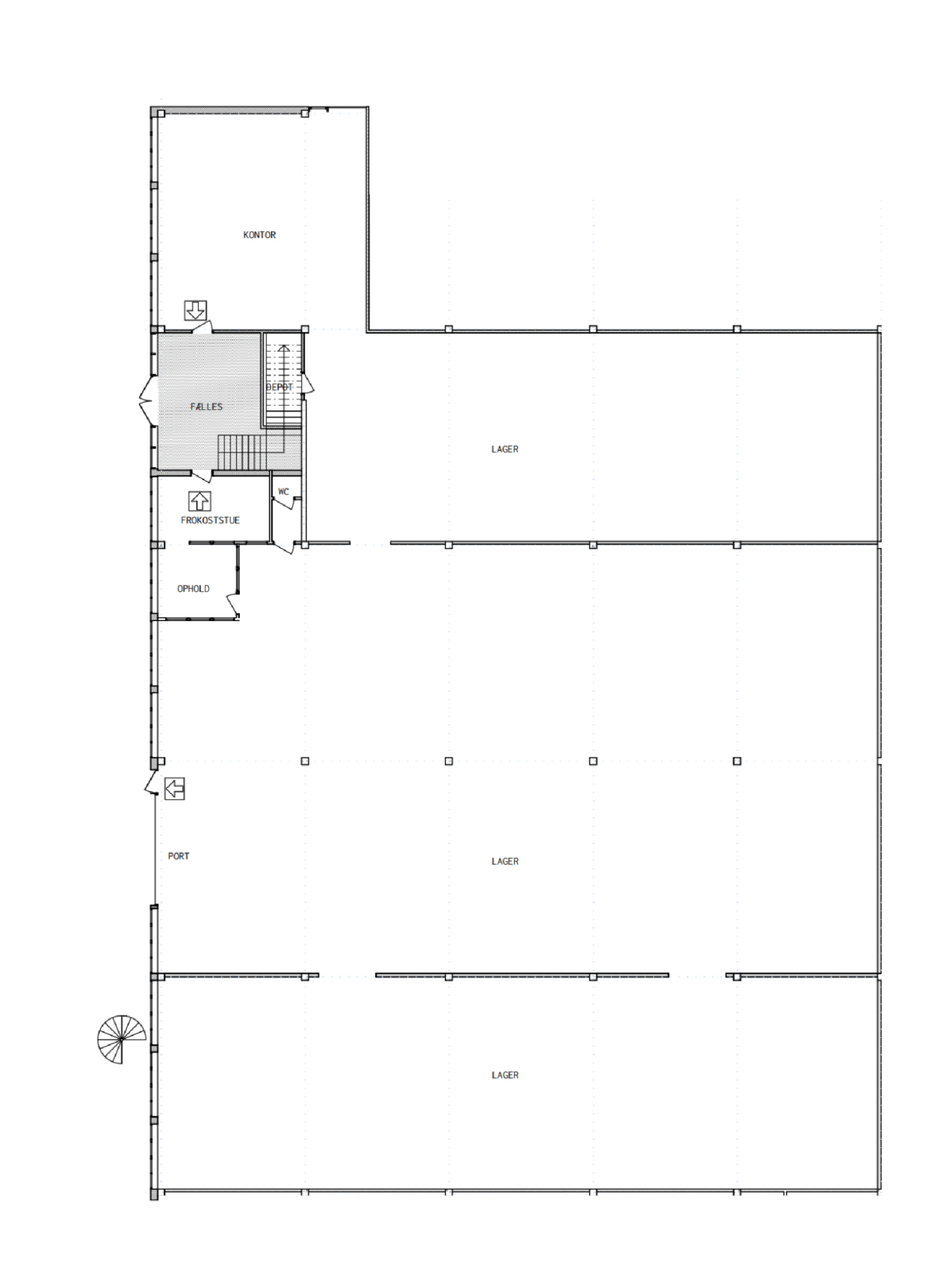
På Baldersbækvej 24A, st. udbydes et velindrettet lejemål på 1.180 m² (ca. 950 m² lager og 230 m² kontor og øvrigt), der kombinerer lager, kontor og showroom i ét. Lejemålet er tidligere anvendt til møbeludstilling og er derfor oplagt for virksomheder, som ønsker præsentable rammer til kunder – samtidig med at driften fungerer effektivt.
Lokalerne er regulære og fleksible med god loftshøjde og portadgang i terræn, hvilket giver nem adgang for både varer og kunder. Hertil kommer kontor, frokoststue og opholdsrum, så medarbejderne får en velfungerende base i dagligdagen.
Ejendommen er præsentabel og velbeliggende tæt på motorvejsnettet og tilbyder masser af parkering, hvilket gør logistikken enkel for både medarbejdere, kunder og leverandører. Inden indflytning i marts 2026 vil lejemålet blive istandsat med opdaterede overflader og moderne faciliteter.
Billederne er fra nabolejemålet og skal ses som inspiration til apteringsniveau og materialevalg.
Overtagelse: Fra marts 2026.







