Flot lejemål under totalrenovering!
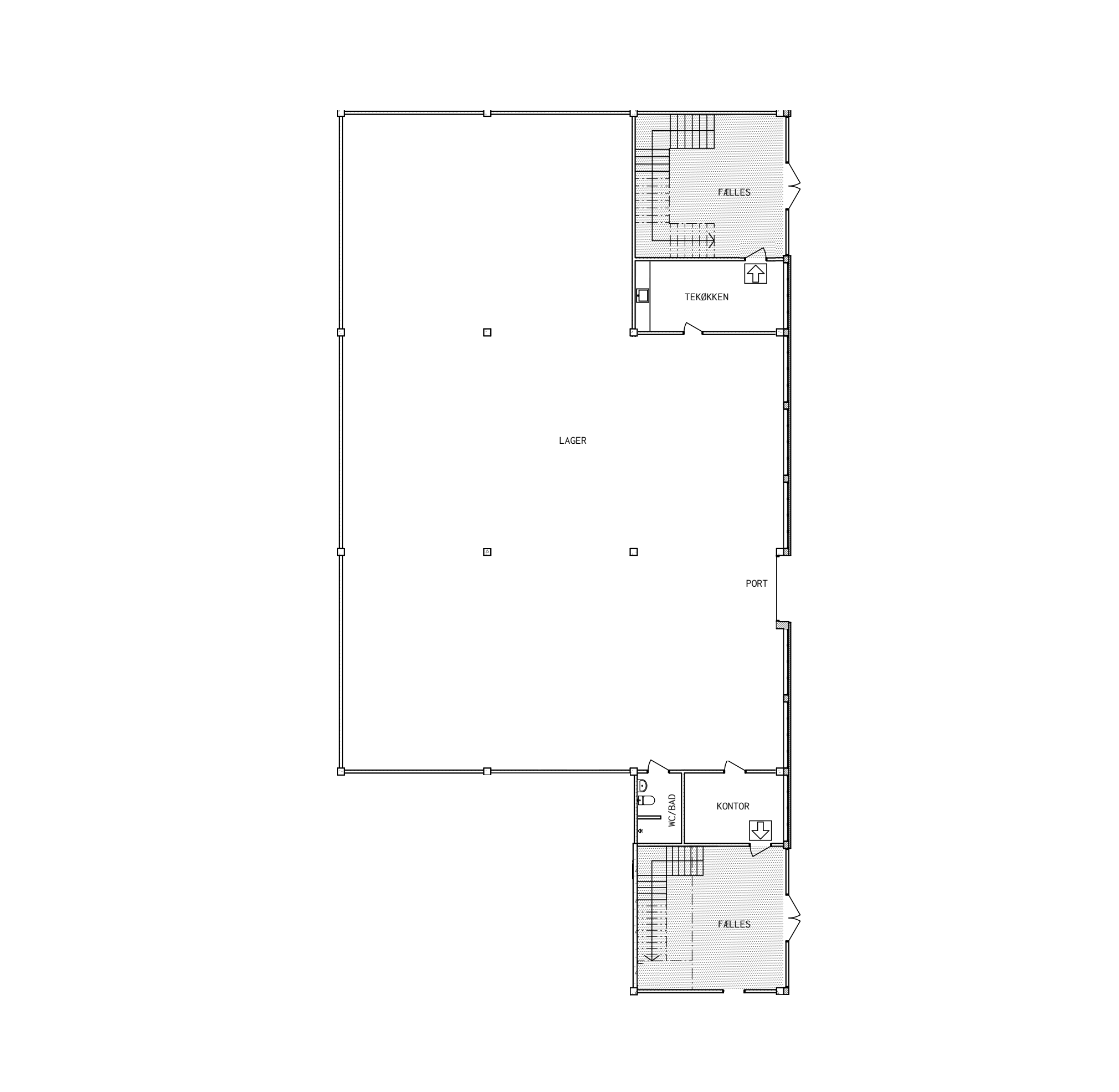
Stort lager eller showroom med tilhørende kontor udlejes. Lejemålet overtages nyistandsat.
Ejendommen er facade-renoveret for nyligt med bl.a. nye vinduer og fremstår repræsentativ. Ejendommen er beliggende i et roligt kvarter, nær offentlig transport og motorvejsnet (E20) og Københavns centrum.
Avedøre Holme er det største erhvervsområde i hovedstadsregionen og blandt de bedst beliggende i landet. Der er direkte adgang til de regionale motorveje herunder Amagermotorvejen, der fører direkte til Københavns Lufthavn og videre til Sverige. Der er gode busforbindelser til København og omegn.
Billederne er fra nabolejemålet og skal ses som inspiration til apteringsniveau og materialevalg.
Alle priser opgivet er ekskl. moms.





