2650
Hvidovre

Hammerholmen 9K, st.

Nyistandsat lager / kølerum i præsentabel ejendom!

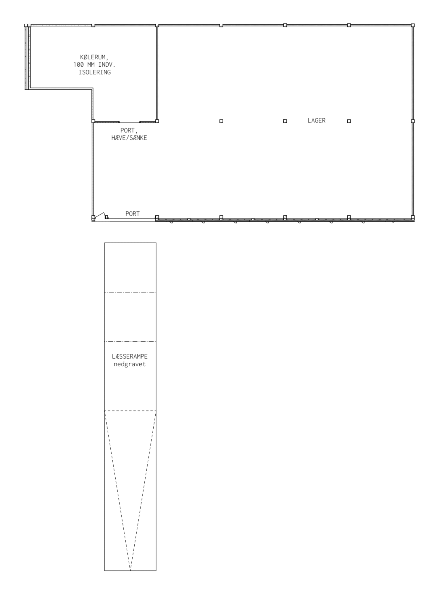
Lager og kølerum udlejes i ejendom med delt læsserampe. Rampen deles mellem to lejere, hvor dette lejemål udgør den ene part. Lejemålets formål er rent lager – enten køl- eller normal lageropbevaring. Lagerarealerne opvarmes med ejendommens centralvarme i form af radiatorer.

Ejendommen har gode parkeringsforhold, så der er pladser til både personale og gæster samt mulighed for opladning af elbiler (E-on og Clever).

Ejendommen er facade-renoveret med bl.a. nye vinduer og fremstår yderst præsentabel. Beliggende i roligt kvarter, nær offentlig transport og motorvejsnet og Københavns centrum.

Ejendommen er indhegnet med tilhørende elektriske porte samt video-overvåget i 24 timer, for at skabe trygge rammer.

Ligeledes forefindes hjertestarter på ejendommen.

Anførte priser er ekskl. moms.

Nøgleinformation

Adresse
Hammerholmen 9K, st.
2650
Hvidovre
Årlig leje
507.450 kr.
Mdr. leje
42.288 kr.
Leje
850 kr. pr. m2
A conto drift
130 kr. pr. m2
A conto varme
60 kr. pr. m2
Depositum
6 mdrs. leje
Areal
597 m2
Leje­regulering
NPI - min. 3,00%
Moms
Ja
Stand
Indflytning
Hvad leder du efter?
Find os
Udfyld nedenstående formular og download prospektet
Kontakt os