Flot og renoveret kontorlejemål udlejes.
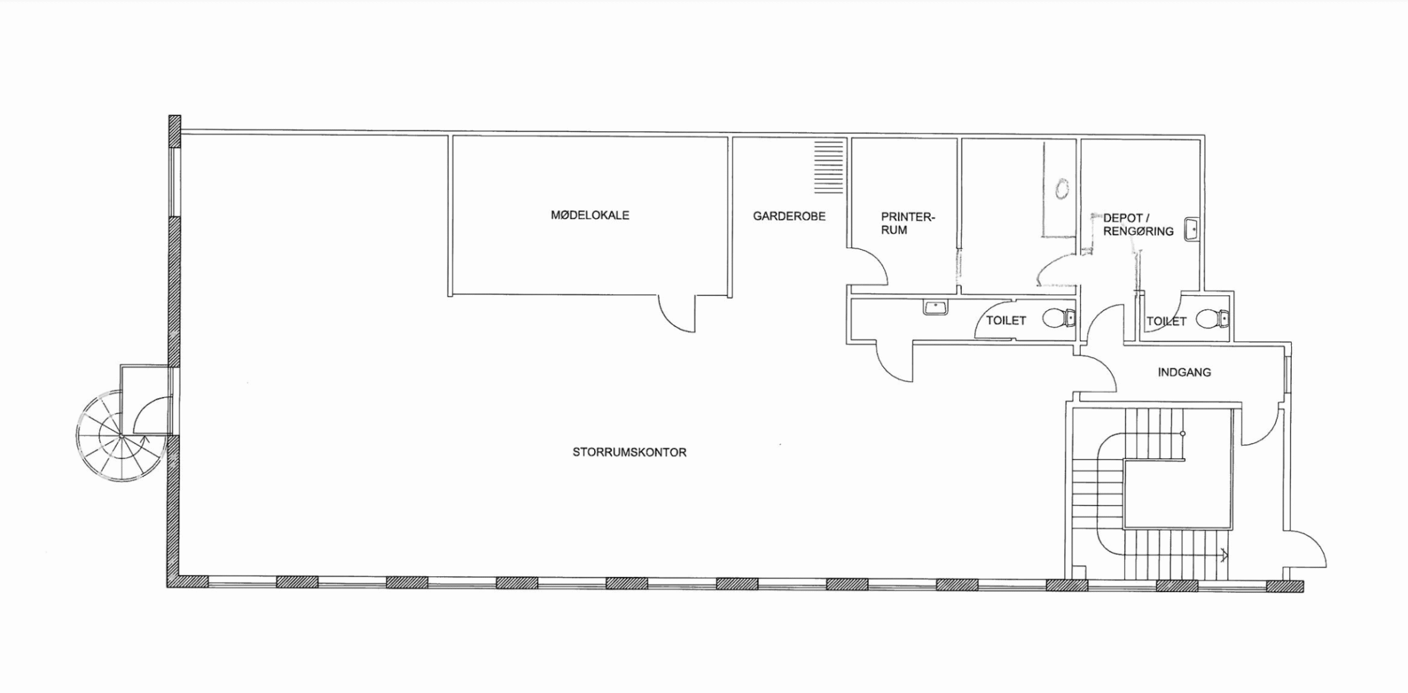
Kontoret er opdelt i storrumskontor, mødelokale, printerrum og spiseområde.
Her er parkeringspladser nok til både personale og gæster nær bygningen.
Der er kort afstand til nærmeste motorvejsnet (E20) og ca. 9 km til Københavnscentrum. Avedøre Holme har gode busforbindelser til København og omegnsområderne.











