Leder du efter et lejemål, som fordeler sig på stueetage og 1. sal, hvor der kan indrettes lidt lager og kontorfaciliter? Så er du muligvis den rette til dette lejemål!
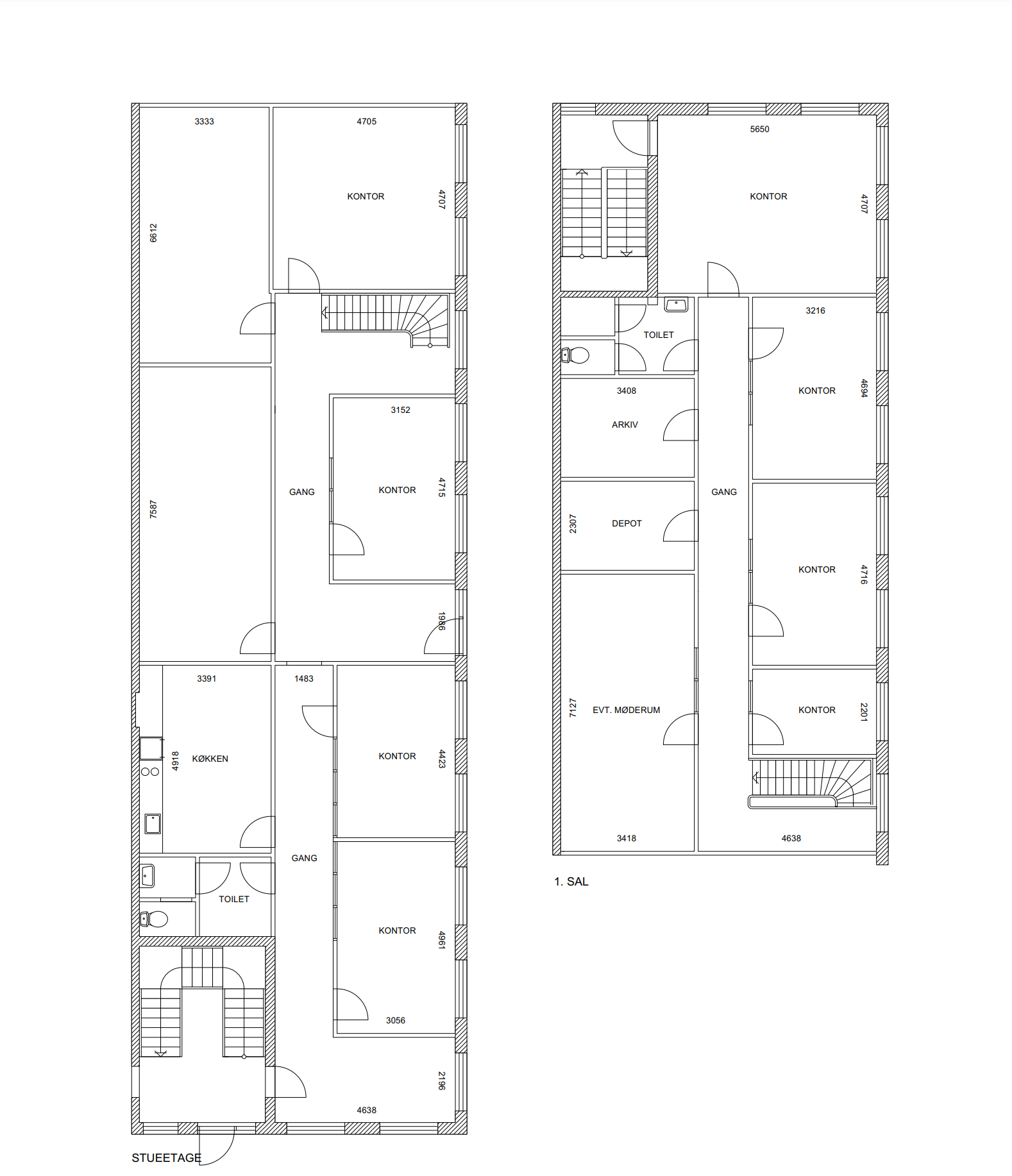
Lejemålet har tidligere været anvendt til showroom/lager med tilknyttede kontorfaciliteter. Herudover er der anretterrum med spiseplads samt toiletfaciliteter.
Parkeringspladser nær lejemålet, med pladser til både personale og gæster samt mulighed for opladning af biler (E-on og Clever).
Ejendommen er beliggende i et roligt kvarter, nær offentlig transport og motorvejsnet. Ejendommen er indhegnet med tilhørende elektriske porte samt videoovervåget i 24 timer, for at skabe trygge rammer.
Ligeledes forefindes hjertestarter på ejendommen.









