Pænt kontor med flere møderum og kontorer!
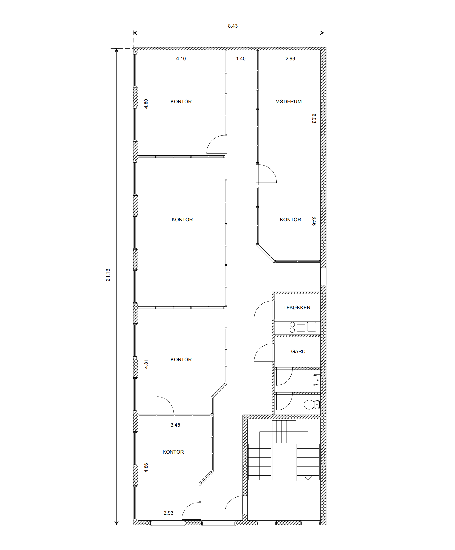
Lejemålet har mange kontorer eller møderum, hertil depot til IT/ server, eget tekøkken og toilet.
Ejendommen har gode parkeringsforhold, så der er pladser til både personale og gæster nær bygningen samt mulighed for opladning af biler (E-on og Clever). Ejendommen er beliggende i et roligt kvarter, nær offentlig transport og motorvejsnet og er indhegnet med tilhørende elektriske porte samt videoovervåget i 24 timer, for at skabe trygge rammer.
Alle priser er anført ekskl. moms.










