På Roholmsvej 15D i Albertslund udbydes et markant og funktionelt erhvervslejemål på i alt 2.401 m², bestående af rummeligt lager- og produktionsareal med tilhørende kontorfaciliteter.
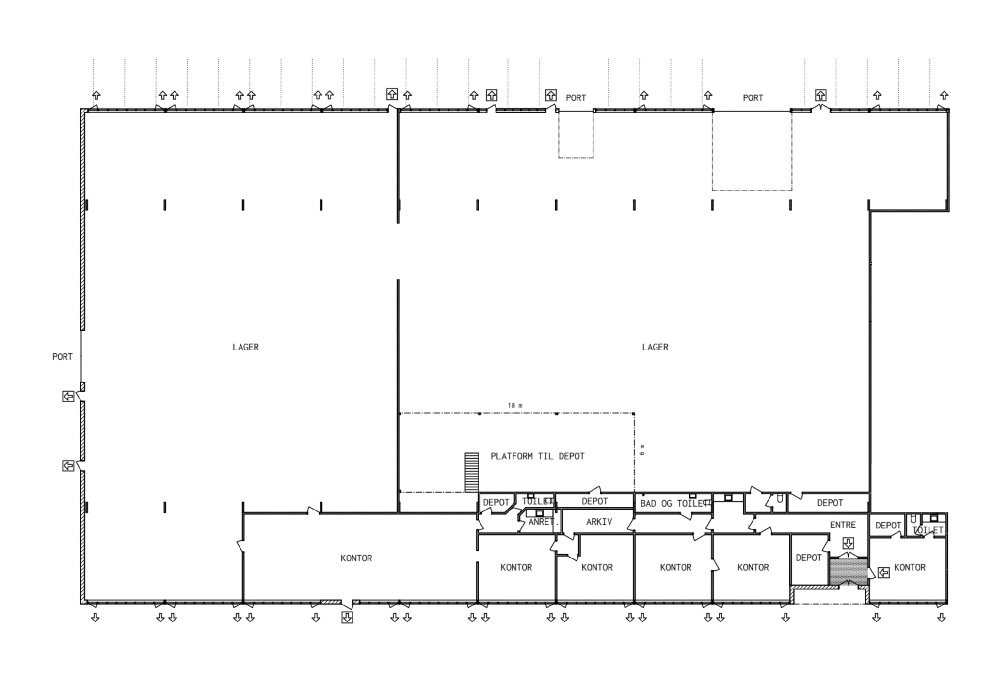
Lagerhallen er opført med karakteristiske limtræsbuer, der skaber et lyst og åbent miljø samt giver god spændvidde. Loftshøjden er 6 meter på midten og 2,8 meter ved facaden, hvilket sikrer fleksible anvendelsesmuligheder. Der er adgang via tre porte, som giver gode muligheder for effektiv varehåndtering og logistik.
Til lejemålet hører et kontorafsnit på cirka 400 m², der ombygges inden genudlejning. Indretningen kan tilpasses den kommende lejers ønsker, så der etableres moderne og funktionelle arbejdspladser i direkte tilknytning til lagerdelen. Kontorområdet rummer i dag bl.a. flere kontorer, mødefaciliteter, depotrum samt toilet- og badefaciliteter.
Ejendommen har gode tilkørselsforhold for både personbiler og lastbiler samt fine parkeringsmuligheder på ejendommen. Beliggenheden giver hurtig adgang til Ring 4, Holbækmotorvejen og Motorring 3, hvilket sikrer effektiv transport til både København og resten af Sjælland.
Lejemålet er oplagt til virksomheder, der ønsker at samle lager, produktion og administration under ét tag i præsentable rammer.










